Altbauflair für den Anspruch von Heute
Bei einer Renovierung sollte der Charme einer Altbauwohnung tunlichst erhalten bleiben und die Wohnqualität erhöht werden. Das erreichen Sie durch eine Optimierung des Grundrisses. Ich entwerfe für Sie ein flexibles Raumkonzept das den Wohnwert Ihrer Altbauwohnung erhöht.
Wie Renovieren?
„Stilgerecht“ und „Zeitlos“ - das sind die Kriterien für das Konzept und die Umsetzung.
Keine Wohnexperimente!
Flexible Raumnutzung
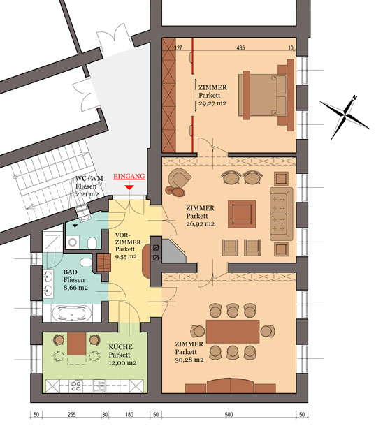
Durch die Möglichkeit einer flexiblen Raumnutzung erweitert sich der Personenkreis der potenziellen Mieter beträchtlich. Bei dem aktuellen Beispiel wurde die Installation von Wasser und Strom auch im Esszimmer vorgesehen. Dadurch wird es möglich, den Küchenblock problemlos zu transferieren. Man erhält dadurch die Möglichkeit die Küche wahlweise auch als Büro, Kinder- oder Gästezimmer zu verwenden. Das Esszimmer würde in diesem Fall zur Wohnküche. Mein Tipp: Bei der Wohnungspräsentation sollte deutlich auf die Möglichkeiten einer flexiblen Raumnutzung hingewiesen werden, da dies einen erheblichen Wettbewerbsvorteil darstellt.
Beispiel: Grundriss-Optimierung inkl. Möbel-Stellplan.
Moderner Standard im Altbau
Im Konzeptbeispiel wird das Badezimmer erweitert und so proportional den Zimmern angepasst. Durch einen begehbaren Schrank im letzten Zimmer, das sich durch seine geschützte Lage als Schlafzimmer anbietet, wird ausreichend Stauraum geschaffen. Die vorherrschende Meinung, dass in Altbauten viele Quadratmeter durch einen problematischen Grundriss verloren gehen, kann eindrucksvoll widerlegt werden.
Wozu ein Möbelstellplan?
Anhand des Möbelstellplans wird der Platzbedarf der Einrichtung veranschaulicht (unabhängig von der Stilrichtung!). Er dient zur Einschätzung der Größenverhältnisse, und ist somit ein wesentlicher Teil der Präsentationsunterlagen. Er ermöglicht den Interessenten sich mit der Wohnung auseinanderzusetzen und unterstützt sie in ihrer Entscheidungsfindung.
Wie viel Ausstattung?
Speziell bei befristeten Mietverträgen ist auf die Ausstattung der Wohnung besonderes Augenmerk zu legen. Unkompliziertheit für den Mieter ist hier der Schlüssel. Auch hier ist ein gut durchdachter Stellplan bei der Präsentation sehr von Vorteil.
Das Honorar für das vorgestellte Beispiel beinhaltet:
.: Besichtigung der Wohnung
.: Besprechung mit Auftraggeber
.: Machbarkeitsprüfung mit Professionisten in der Wohnung
.: Konzepterstellung für Grundriss-Optimierung
.: Erstellung eines Möbel-Stellplanes für Präsentationsunterlagen
.: Darstellung des Konzeptes in 2D (pdf-Datei)
.: Übergabe des Konzepts mit Endbesprechung
EUR 1.800,- (zzgl. USt., Preis vorbehaltlich eines aktuellen Grundrissplans)
.:.
Bei einer Renovierung sollte der Charme einer Altbauwohnung tunlichst erhalten bleiben und die Wohnqualität erhöht werden. Das erreichen Sie durch eine Optimierung des Grundrisses. Ich entwerfe für Sie ein flexibles Raumkonzept das den Wohnwert Ihrer Altbauwohnung erhöht.
Wie Renovieren?
„Stilgerecht“ und „Zeitlos“ - das sind die Kriterien für das Konzept und die Umsetzung.
Keine Wohnexperimente!
Flexible Raumnutzung
Durch die Möglichkeit einer flexiblen Raumnutzung erweitert sich der Personenkreis der potenziellen Mieter beträchtlich. Bei dem aktuellen Beispiel wurde die Installation von Wasser und Strom auch im Esszimmer vorgesehen. Dadurch wird es möglich, den Küchenblock problemlos zu transferieren. Man erhält dadurch die Möglichkeit die Küche wahlweise auch als Büro, Kinder- oder Gästezimmer zu verwenden. Das Esszimmer würde in diesem Fall zur Wohnküche. Mein Tipp: Bei der Wohnungspräsentation sollte deutlich auf die Möglichkeiten einer flexiblen Raumnutzung hingewiesen werden, da dies einen erheblichen Wettbewerbsvorteil darstellt.
Beispiel: Grundriss-Optimierung inkl. Möbel-Stellplan.
Moderner Standard im Altbau
Im Konzeptbeispiel wird das Badezimmer erweitert und so proportional den Zimmern angepasst. Durch einen begehbaren Schrank im letzten Zimmer, das sich durch seine geschützte Lage als Schlafzimmer anbietet, wird ausreichend Stauraum geschaffen. Die vorherrschende Meinung, dass in Altbauten viele Quadratmeter durch einen problematischen Grundriss verloren gehen, kann eindrucksvoll widerlegt werden.
Wozu ein Möbelstellplan?
Anhand des Möbelstellplans wird der Platzbedarf der Einrichtung veranschaulicht (unabhängig von der Stilrichtung!). Er dient zur Einschätzung der Größenverhältnisse, und ist somit ein wesentlicher Teil der Präsentationsunterlagen. Er ermöglicht den Interessenten sich mit der Wohnung auseinanderzusetzen und unterstützt sie in ihrer Entscheidungsfindung.
Wie viel Ausstattung?
Speziell bei befristeten Mietverträgen ist auf die Ausstattung der Wohnung besonderes Augenmerk zu legen. Unkompliziertheit für den Mieter ist hier der Schlüssel. Auch hier ist ein gut durchdachter Stellplan bei der Präsentation sehr von Vorteil.
Das Honorar für das vorgestellte Beispiel beinhaltet:
.: Besichtigung der Wohnung
.: Besprechung mit Auftraggeber
.: Machbarkeitsprüfung mit Professionisten in der Wohnung
.: Konzepterstellung für Grundriss-Optimierung
.: Erstellung eines Möbel-Stellplanes für Präsentationsunterlagen
.: Darstellung des Konzeptes in 2D (pdf-Datei)
.: Übergabe des Konzepts mit Endbesprechung
EUR 1.800,- (zzgl. USt., Preis vorbehaltlich eines aktuellen Grundrissplans)
.:.
